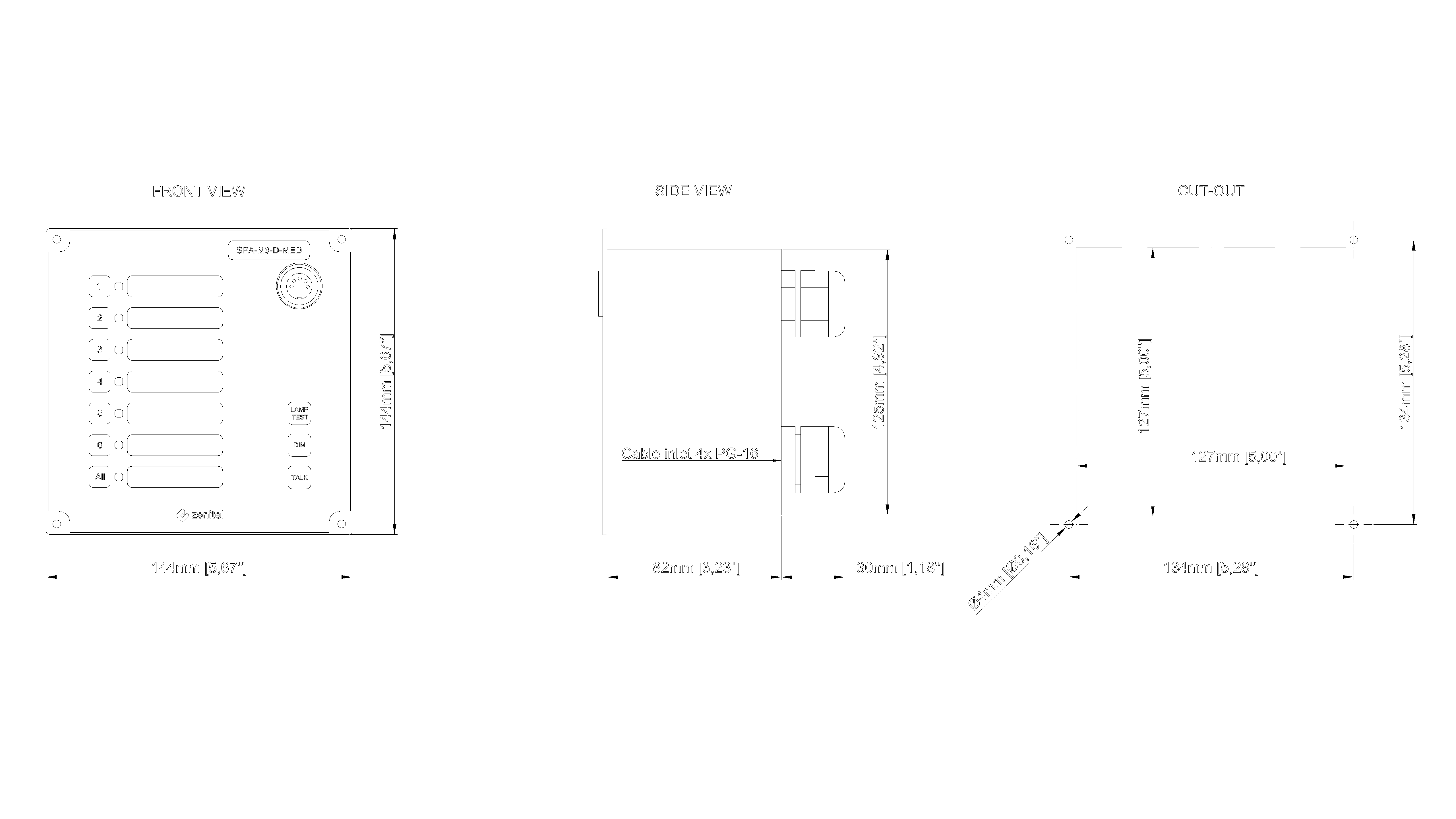
SPA-M6-D-MED
Item Number: 2340110050
PA Panel Dual with 6 Zones, All Call, Dimmer, Flush, Green Backlight
- PA panel for dual system
- Built-in pre-amplifier with preset signal level and tone controls
- 6 zone selection buttons
- ALL, TALK and dimmer buttons.
- Replaceable text label to each zone button
- Zone buttons have activation confirmation light
- Flush mounting, back box for wall mounting is available
- Local mute contact for external loudspeaker
- Buttons backlight with green illumination

